Klubovna Blokki

Hledáte moderní, rychlé a efektivní řešení pro skautskou klubovnu? Představujeme inovativní návrh klubovny z lodních kontejnerů, který spojuje praktičnost, udržitelnost a dostupnost. Díky modulárnímu systému lze stavbu snadno přizpůsobit konkrétním potřebám oddílu, a přitom zajistit veškerý komfort včetně kuchyňky, sociálního zázemí i energeticky úsporného provozu. Tento promyšlený koncept umožňuje rychlou montáž a minimalizuje dopad stavby na okolí. Ideální volba pro skautské jednotky, které hledají funkční a rychlé řešení s možností budoucího přemístění.
Blokki 1

Základovou konstrukci tvoří tři 40 stopové lodní kontejnery. Lodní kontejnery tvoří nosnou konstrukci, ale nejsou nikde přiznané, veškeré kovové části jsou zakryté, z venku je celá stavba zaizolována tvrdou pěnou bez tepelných mostů.

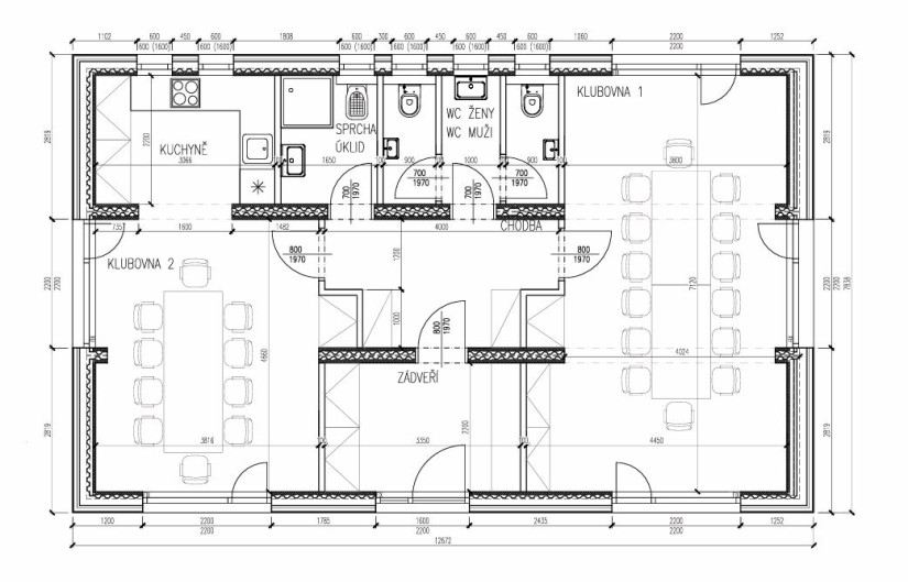
Zastavěná plocha 100 m2, užitná plocha 80 m2. Stavba obsahuje vstupní prostor, chodbu, dvě klubovní místnosti, menší je s kuchyňkou a sociální zázemí. Je umístěna na základové patky.

Z hlediska stavebního řízení potřebuje i tento projekt stavební povolení jako každá jiná stavba a vztahují se na ni pravidla místního územního plánu.

Blokki půdorys

Stavba je navržena v energetickém standartu třídy B, který počítá s využitím fotovoltaiky na střeše. Budova má elektrické podlahové topení řešené topnou folií, okna mají trojskla. S návrhem je možné dále pracovat, je možná    i varianta se sedlovou střechou, pokud by to územní plán vyžadoval.

Návrh půdorysu neřeší bezbariérovost, která bude zapotřebí, pokud by došlo k podpoře z veřejných rozpočtů. Technicky je možná kombinace bezbariérového záchodu a sprchy (zabudování bezbariérového odtoku do skladby podlahy bez sprchové vaničky). Konkrétní řešení, např. dva unisex záchody, z toho jeden bezbariérový se sprchou, bude záviset na požadavcích vašeho stavebního úřadu. 

Výhody:

  • Stavbu lze přemístit, takže se jedná o možné řešení na místa s právem stavby na dobu kratší jak 50 let.
  • Kratší doba výstavby, stavba nezatěžuje svým průběhem okolí. Předpokladem pro realizaci je získání stavebního povolení, následující projekce a výroba zabere tři až čtyři měsíce. Montáž na místě na připravené základové patky a dokončení stavby je otázkou 14 dnů. 

Předpoklady:

  • Místo musí být dostupné pro dopravu a manipulační techniku, velký jeřáb a nákladní auto s návěsem.
    V případě budoucí demontáže je zapotřebí přístup zachovat.
  • Je zapotřebí mít k dispozici naráz celou pořizovací cenu, není prostor pro snížení ceny svépomocí, kromě přípravy základů a přípojek.

Cenová kalkulace (platná pro únor 2025):

Cena 3 557 000 bez DPH ( 4 304 000 včetně 21% DPH).

Cena zahrnuje:

  • Projektovou dokumentaci pro povolení, doprava a manipulaci do vzdálenosti 100 km od místa výroby (Havlíčkův Brod), přípravu založení na základové pilíře, přípravu na fotovoltaiku (jističe v rozvaděči a vyvedení kabelů na střechu). Zařizovací prvky sociálního zázemí. Venkovní stínící žaluzie na zastínění oken.

Cena nezahrnuje:

  • okolní terasu, případné další venkovní úpravy, přípojky, fotovoltaické panely, kuchyňku, vestavěné skladovací skříně
Blokki

Možným řešením je příprava projektu a za rok před obecními volbami nabízet projekt místním kandidátkám jako jejich volební program s tím, že klubovnu postaví obec, bude jejím majetkem a skautům ji předá do výpůjčky.

Návrh klubovny byl představen na Setkání k nemovitostem 2025 a záznam představení je k dispozici ZDE.

Kontakt a bližší informace: Standa Míka, stanislav.mika@skautskanadace.cz

Složka s použitými obrázky.

Web výrobce: https://www.blokki.cz/, kontakt: zdena.zlatova@h3.cz 

Blokki 1

Nabídka vznikla po cíleném oslovení výrobce nadací na stavebním veletrhu. Propaguje konkrétního dodavatele na základě iniciativy Skautské nadace Jaroslava Foglara.